Listed by Pam Fales of Porchlight Real Estate Group (pam@porchlightgroup.com,303-667-1105)

Listing Sold by LIV Sotheby's International Realty

Listing Tools

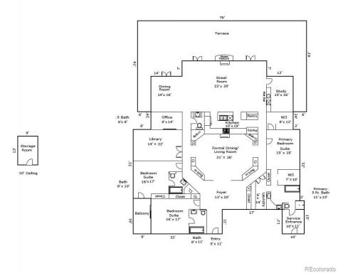
Nestled in the heart of the prestigious Cherry Creek neighborhood, moments from exceptional dining, shopping and outdoor pursuits, this gracious condominium offers a unique blend of classic charm and modern convenience. Across nearly 5,000 square feet of luxurious, single-level living, you'll discover generous spaces, stunning millwork, and an attention to every detail. In the foyer, you're greeted by a sense of grandeur. The impressive living area features high ceilings and walls of windows that infuse the space with natural light, creating an inviting atmosphere. What truly distinguishes this residence is the expansive terrace, a 1,800-square-foot oasis that spans the entire length of the condo and offers breathtaking treetop views and a peek of mountain vistas. It's an ideal setting for morning coffee, evening cocktails and al fresco dining, as well as hosting spectacular gatherings. For the culinary aficionado, the kitchen is thoughtfully equipped with high-end appliances, ample counter and cabinet space, plus a walk-in pantry and island. In addition to the primary suite, each bedroom is substantial in size and includes its own ensuite bath. There's also a library and cozy sitting room with a view of the terrace, offering a peaceful retreat for relaxation. While this condo retains a classic allure, the modern amenities of the One Polo Creek building include 24/7 concierge services and three deeded parking spaces in a secured and heated underground garage. Residents also enjoy weekly on-site car wash services, dedicated storage, a fitness center, guest suites, and a lush, landscaped garden area with benches and conversation areas. With its elegant charm and impressive, private, outdoor space, this unique property presents an exceptional opportunity for those who appreciate both the past and present.

Property Details of 2400 E Cherry Creek South Drive, Unit 402

Property Details

Interior Features

Exterior Features

Utilities and Appliances

Community

Other Details

Map Location

Driving Directions

The content relating to real estate for sale in this Web site comes in part from the Internet Data eXchange (“IDX”) program of METROLIST, INC., DBA RECOLORADO® Real estate listings held by brokers other than Madison & Company Properties, LLC are marked with the IDX Logo. This information is being provided for the consumers’ personal, non-commercial use and may not be used for any other purpose. All information subject to change and should be independently verified.

This publication is designed to provide information with regard to the subject matter covered. It is displayed with the understanding that the publisher and authors are not engaged in rendering real estate, legal, accounting, tax, or other professional services and that the publisher and authors are not offering such advice in this publication. If real estate, legal, or other expert assistance is required, the services of a competent, professional person should be sought.

The information contained in this publication is subject to change without notice. METROLIST, INC., DBA RECOLORADO MAKES NO WARRANTY OF ANY KIND WITH REGARD TO THIS MATERIAL, INCLUDING, BUT NOT LIMITED TO, THE IMPLIED WARRANTIES OF MERCHANTABILITY AND FITNESS FOR A PARTICULAR PURPOSE. METROLIST, INC., DBA RECOLORADO SHALL NOT BE LIABLE FOR ERRORS CONTAINED HEREIN OR FOR ANY DAMAGES IN CONNECTION WITH THE FURNISHING, PERFORMANCE, OR USE OF THIS MATERIAL.

All real estate advertised herein is subject to the Federal Fair Housing Act and the Colorado Fair Housing Act, which Acts make it illegal to make or publish any advertisement that indicates any preference, limitation, or discrimination based on race, color, religion, sex, handicap, familial status, or national origin.

METROLIST, INC., DBA RECOLORADO will not knowingly accept any advertising for real estate that is in violation of the law. All persons are hereby informed that all dwellings advertised are available on an equal opportunity basis.

©2026 METROLIST, INC., DBA RECOLORADO® – All Rights Reserved 6455 S. Yosemite St., Suite 300 Greenwood Village, CO 80111 USA

ALL RIGHTS RESERVED WORLDWIDE. No part of this publication may be reproduced, adapted, translated, stored in a retrieval system or transmitted in any form or by any means, electronic, mechanical, photocopying, recording, or otherwise, without the prior written permission of the publisher. The information contained herein including but not limited to all text, photographs, digital images, virtual tours, may be seeded and monitored for protection and tracking.

Hi there! How can we help you?

Contact us using the form below or give us a call.

Send Us A Message:

By clicking ‘Send,’ you consent to receive marketing and informational communications from Madison & Company Properties, LLC and its affiliates [Brokerage, Lenders, Title, and others] at the phone number and email address you provided. These communications may include text messages, phone calls (including those made using automated dialing systems or prerecorded messages), and emails related to Real Estate. Consent is not a condition of any purchase. Standard message and data rates may apply. You may opt out of receiving communications at any time by replying ‘STOP’ to text messages, clicking ‘Unsubscribe’ in emails, or contacting Madison & Company Properties at info@madisonprops.com. For more information about how your data is used and stored, please see our Privacy Policy & Terms of Service . I agree to the above terms and consent to receive communications as described.

Do not fill in this field:

This site is protected by reCAPTCHA and the Google Privacy Policy and Terms of Service apply.

Hi there! How can we help you?

Contact us using the form below or give us a call.

Send Us A Message:

Do not fill in this field:

This site is protected by reCAPTCHA and the Google Privacy Policy and Terms of Service apply.

Hi there! How can we help you?

Contact us using the form below or give us a call.

Send Us A Message:

Do not fill in this field:

This site is protected by reCAPTCHA and the Google Privacy Policy and Terms of Service apply.

Do not fill in this field:

This site is protected by reCAPTCHA and the Google Privacy Policy and Terms of Service apply.

Do not fill in this field:

This site is protected by reCAPTCHA and the Google Privacy Policy and Terms of Service apply.

Do not fill in this field:

This site is protected by reCAPTCHA and the Google Privacy Policy and Terms of Service apply.

$

Do not fill in this field:

This site is protected by reCAPTCHA and the Google Privacy Policy and Terms of Service apply.