Listed by Mitch Shannon of Madison & Company Properties (mitch@mitchshannon.com,303-229-1212)

Listing Sold by Redfin Corporation

Listing Tools

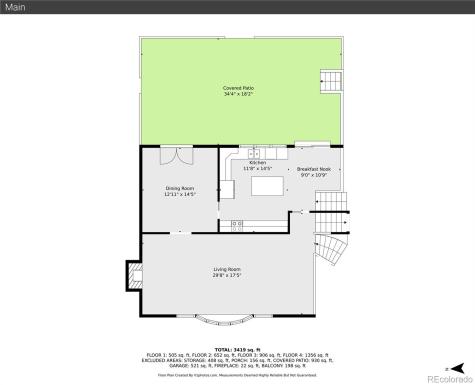
Nestled in The Coventry, a coveted 24-hour professionally staffed gated community, this spacious 4-bedroom home offers an unbeatable location overlooking the neighborhood park and just a short stroll to the community pool. With incredible potential for renovation or gradual updates over time, this property is priced for future equity. Set on a generous 0.4-acre lot, the home boasts oversized bedrooms, vaulted ceilings with exposed beams, and an abundance of natural light throughout. The primary suite offers a walk-in closet, a private deck providing the perfect spot for morning coffee, and room for customization to create your perfect retreat. The expansive kitchen, complete with solid surface counters, a center island, provides endless possibilities for modern upgrades. The home also features a durable DaVinci polymer roof, installed in 2018, with a lifetime limited warranty for long-term peace of mind, with newer gutters. The large, almost half acre lot provides multiple outdoor living spaces. Relax on the covered front porch, entertain under the expansive pergola-covered patio, or soak in the hot tub while enjoying the beautifully landscaped backyard filled with mature trees. Additional highlights include two cozy fireplaces, hot water heat serviced in 2023, and two wall-mounted evaporative coolers for year-round comfort. The side-load garage adds functionality while enhancing the home's curb appeal. This home is livable as-is, but its interior offers a fantastic opportunity to transform the space into the home of your dreams. Don't miss this rare chance to combine location, potential, and value in one of the most sought-after Littleton communities-schedule your showing today!

Property Details of 6056 S Coventry Lane E

Property Details

Interior Features

Exterior Features

Utilities and Appliances

Community

Other Details

Map Location

Driving Directions

The content relating to real estate for sale in this Web site comes in part from the Internet Data eXchange (“IDX”) program of METROLIST, INC., DBA RECOLORADO® Real estate listings held by brokers other than Madison & Company Properties, LLC are marked with the IDX Logo. This information is being provided for the consumers’ personal, non-commercial use and may not be used for any other purpose. All information subject to change and should be independently verified.

This publication is designed to provide information with regard to the subject matter covered. It is displayed with the understanding that the publisher and authors are not engaged in rendering real estate, legal, accounting, tax, or other professional services and that the publisher and authors are not offering such advice in this publication. If real estate, legal, or other expert assistance is required, the services of a competent, professional person should be sought.

The information contained in this publication is subject to change without notice. METROLIST, INC., DBA RECOLORADO MAKES NO WARRANTY OF ANY KIND WITH REGARD TO THIS MATERIAL, INCLUDING, BUT NOT LIMITED TO, THE IMPLIED WARRANTIES OF MERCHANTABILITY AND FITNESS FOR A PARTICULAR PURPOSE. METROLIST, INC., DBA RECOLORADO SHALL NOT BE LIABLE FOR ERRORS CONTAINED HEREIN OR FOR ANY DAMAGES IN CONNECTION WITH THE FURNISHING, PERFORMANCE, OR USE OF THIS MATERIAL.

All real estate advertised herein is subject to the Federal Fair Housing Act and the Colorado Fair Housing Act, which Acts make it illegal to make or publish any advertisement that indicates any preference, limitation, or discrimination based on race, color, religion, sex, handicap, familial status, or national origin.

METROLIST, INC., DBA RECOLORADO will not knowingly accept any advertising for real estate that is in violation of the law. All persons are hereby informed that all dwellings advertised are available on an equal opportunity basis.

©2025 METROLIST, INC., DBA RECOLORADO® – All Rights Reserved 6455 S. Yosemite St., Suite 300 Greenwood Village, CO 80111 USA

ALL RIGHTS RESERVED WORLDWIDE. No part of this publication may be reproduced, adapted, translated, stored in a retrieval system or transmitted in any form or by any means, electronic, mechanical, photocopying, recording, or otherwise, without the prior written permission of the publisher. The information contained herein including but not limited to all text, photographs, digital images, virtual tours, may be seeded and monitored for protection and tracking.

Hi there! How can we help you?

Contact us using the form below or give us a call.

Send Us A Message:

By clicking ‘Send,’ you consent to receive marketing and informational communications from Madison & Company Properties, LLC and its affiliates [Brokerage, Lenders, Title, and others] at the phone number and email address you provided. These communications may include text messages, phone calls (including those made using automated dialing systems or prerecorded messages), and emails related to Real Estate. Consent is not a condition of any purchase. Standard message and data rates may apply. You may opt out of receiving communications at any time by replying ‘STOP’ to text messages, clicking ‘Unsubscribe’ in emails, or contacting Madison & Company Properties at info@madisonprops.com. For more information about how your data is used and stored, please see our Privacy Policy & Terms of Service . I agree to the above terms and consent to receive communications as described.

Do not fill in this field:

This site is protected by reCAPTCHA and the Google Privacy Policy and Terms of Service apply.

Hi there! How can we help you?

Contact us using the form below or give us a call.

Send Us A Message:

Do not fill in this field:

This site is protected by reCAPTCHA and the Google Privacy Policy and Terms of Service apply.

Hi there! How can we help you?

Contact us using the form below or give us a call.

Send Us A Message:

Do not fill in this field:

This site is protected by reCAPTCHA and the Google Privacy Policy and Terms of Service apply.

Do not fill in this field:

This site is protected by reCAPTCHA and the Google Privacy Policy and Terms of Service apply.

Do not fill in this field:

This site is protected by reCAPTCHA and the Google Privacy Policy and Terms of Service apply.

Do not fill in this field:

This site is protected by reCAPTCHA and the Google Privacy Policy and Terms of Service apply.

$

Do not fill in this field:

This site is protected by reCAPTCHA and the Google Privacy Policy and Terms of Service apply.