Listed by Robin Gerlach of Compass - Denver

Listing Tools

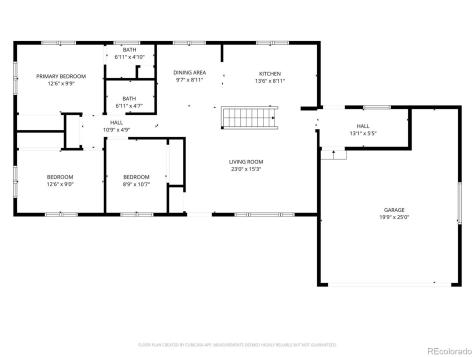
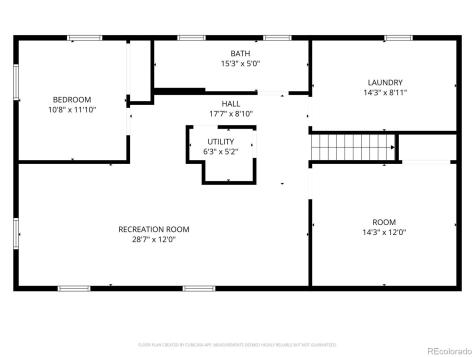
Welcome to your new home in Lamar Heights. This recently renovated and energy-efficient home is waiting for it's next owner to make it their own. Situated on a large corner lot encompassing over 1/4 acre, this home offers a blend of modern finishes with practical conveniences and plenty of storage. As you enter, you'll notice the open floor plan with natural light entering from the south-facing windows. The fully updated kitchen offers a double oven, cooktop, quartz countertops, cherry hardwood cabinets and farm-style sink. The home brings more practicality with a mudroom entrance from the oversized 2-car garage, 3 bedrooms on the main level and updated bathrooms throughout. The basement gives you flex space with a large family room, a fully conforming 4th bedroom, updated 3/4 bathroom, a den that can serve as a home office, gym, flex space or non-conforming 5th bedroom. The laundry room offers plenty of extra storage. This home comes with FULLY OWNED SOLAR panels and a geothermal system that feeds into the water heater for maximum energy efficiency. Other recent updates include a newer Roof (2024), new insulation (2023), radon mitigation system (2023) and new sewer line (2023). This property gives you the flexibility to park your RV or trailer on the side yard with the generous-sized lot. It's conveniently located just 2 miles from Olde Town Arvada and 1/2 mile from the Arvada Center for Performing Arts & Humanities. Just 2 miles from the Majestic View Park as well. Schedule your showing to see for yourself.

Property Details of 7253 W 69th Avenue

Property Details

Interior Features

Exterior Features

Utilities and Appliances

Community

Other Details

Map Location

Driving Directions

The content relating to real estate for sale in this Web site comes in part from the Internet Data eXchange (“IDX”) program of METROLIST, INC., DBA RECOLORADO® Real estate listings held by brokers other than Madison & Company Properties, LLC are marked with the IDX Logo. This information is being provided for the consumers’ personal, non-commercial use and may not be used for any other purpose. All information subject to change and should be independently verified.

This publication is designed to provide information with regard to the subject matter covered. It is displayed with the understanding that the publisher and authors are not engaged in rendering real estate, legal, accounting, tax, or other professional services and that the publisher and authors are not offering such advice in this publication. If real estate, legal, or other expert assistance is required, the services of a competent, professional person should be sought.

The information contained in this publication is subject to change without notice. METROLIST, INC., DBA RECOLORADO MAKES NO WARRANTY OF ANY KIND WITH REGARD TO THIS MATERIAL, INCLUDING, BUT NOT LIMITED TO, THE IMPLIED WARRANTIES OF MERCHANTABILITY AND FITNESS FOR A PARTICULAR PURPOSE. METROLIST, INC., DBA RECOLORADO SHALL NOT BE LIABLE FOR ERRORS CONTAINED HEREIN OR FOR ANY DAMAGES IN CONNECTION WITH THE FURNISHING, PERFORMANCE, OR USE OF THIS MATERIAL.

All real estate advertised herein is subject to the Federal Fair Housing Act and the Colorado Fair Housing Act, which Acts make it illegal to make or publish any advertisement that indicates any preference, limitation, or discrimination based on race, color, religion, sex, handicap, familial status, or national origin.

METROLIST, INC., DBA RECOLORADO will not knowingly accept any advertising for real estate that is in violation of the law. All persons are hereby informed that all dwellings advertised are available on an equal opportunity basis.

©2026 METROLIST, INC., DBA RECOLORADO® – All Rights Reserved 6455 S. Yosemite St., Suite 300 Greenwood Village, CO 80111 USA

ALL RIGHTS RESERVED WORLDWIDE. No part of this publication may be reproduced, adapted, translated, stored in a retrieval system or transmitted in any form or by any means, electronic, mechanical, photocopying, recording, or otherwise, without the prior written permission of the publisher. The information contained herein including but not limited to all text, photographs, digital images, virtual tours, may be seeded and monitored for protection and tracking.

Hi there! How can we help you?

Contact us using the form below or give us a call.

Send Us A Message:

By clicking ‘Send,’ you consent to receive marketing and informational communications from Madison & Company Properties, LLC and its affiliates [Brokerage, Lenders, Title, and others] at the phone number and email address you provided. These communications may include text messages, phone calls (including those made using automated dialing systems or prerecorded messages), and emails related to Real Estate. Consent is not a condition of any purchase. Standard message and data rates may apply. You may opt out of receiving communications at any time by replying ‘STOP’ to text messages, clicking ‘Unsubscribe’ in emails, or contacting Madison & Company Properties at info@madisonprops.com. For more information about how your data is used and stored, please see our Privacy Policy & Terms of Service . I agree to the above terms and consent to receive communications as described.

Do not fill in this field:

This site is protected by reCAPTCHA and the Google Privacy Policy and Terms of Service apply.

Hi there! How can we help you?

Contact us using the form below or give us a call.

Send Us A Message:

Do not fill in this field:

This site is protected by reCAPTCHA and the Google Privacy Policy and Terms of Service apply.

Hi there! How can we help you?

Contact us using the form below or give us a call.

Send Us A Message:

Do not fill in this field:

This site is protected by reCAPTCHA and the Google Privacy Policy and Terms of Service apply.

Do not fill in this field:

This site is protected by reCAPTCHA and the Google Privacy Policy and Terms of Service apply.

Do not fill in this field:

This site is protected by reCAPTCHA and the Google Privacy Policy and Terms of Service apply.

Do not fill in this field:

This site is protected by reCAPTCHA and the Google Privacy Policy and Terms of Service apply.

$

Do not fill in this field:

This site is protected by reCAPTCHA and the Google Privacy Policy and Terms of Service apply.