Listed by Cathleen Abeyta of Your Castle Real Estate Inc (cathleenabeyta@gmail.com,303-506-9282)

Listing Sold by Corcoran Perry & Co.

Listing Tools

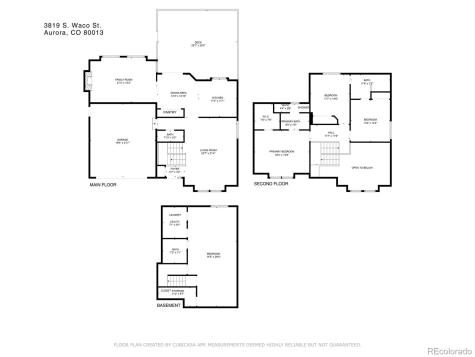
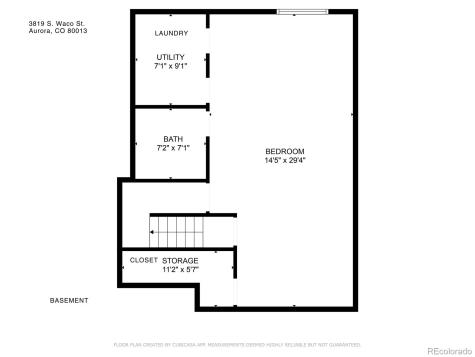
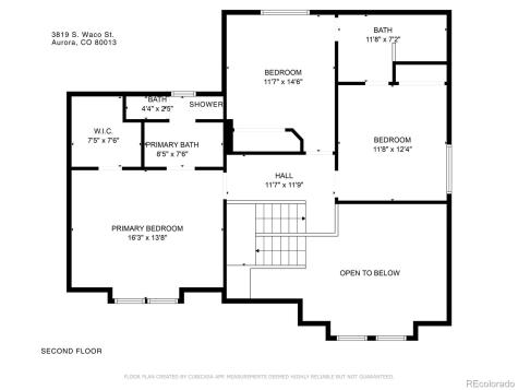
Welcome to this beautifully refreshed home in the desirable Summer Breeze neighborhood, located within the highly rated Cherry Creek School District. Walking in, you will be greeted by a spacious and inviting floorplan, featuring soaring vaulted ceilings, Velux skylights, and Pella windows, providing an abundance of natural light throughout, and mountain views from the 2nd floor. Updates include a new roof in 2022, basement finished in 2021, new carpeting and interior paint in 2025, including the stairs and railing, newer lighting, and more! The main floor has a formal living and dining room, plus a family room and stylish and functional eat-in kitchen, which features a pantry, oak hardwood flooring, granite countertops and backsplash, with plenty of cabinets, and French doors that open to the giant back deck, convenient for grilling, creating a welcoming and cohesive space to entertain inside and out. Upstairs, you will find the roomy primary suite, with a walk-in closet, ensuite bath, including a walk-in shower, large vanity, and oversized soaking tub. The two additional 2nd floor bedrooms share an adjoining full bathroom. The basement is fully finished, with a huge flex area, egress window, walk-in closet, and 3/4 bath. This basement space can be used as a 4th bedroom suite, home gym, office, rec/game room, a 3rd living space, or a combination. The oversized 2-car garage has built in cabinets, a workbench, and plenty of space for your tools, yard equipment, and gear. The Seller is providing a one-year home warranty for the Buyer. The home has had a professional deep cleaning, in addition to the recent updates, so nothing needs to be done, besides move in and ENJOY your new home!

Property Details of 3819 S Waco Street

Property Details

Interior Features

Exterior Features

Utilities and Appliances

Community

Other Details

Map Location

Driving Directions

The content relating to real estate for sale in this Web site comes in part from the Internet Data eXchange (“IDX”) program of METROLIST, INC., DBA RECOLORADO® Real estate listings held by brokers other than Madison & Company Properties, LLC are marked with the IDX Logo. This information is being provided for the consumers’ personal, non-commercial use and may not be used for any other purpose. All information subject to change and should be independently verified.

This publication is designed to provide information with regard to the subject matter covered. It is displayed with the understanding that the publisher and authors are not engaged in rendering real estate, legal, accounting, tax, or other professional services and that the publisher and authors are not offering such advice in this publication. If real estate, legal, or other expert assistance is required, the services of a competent, professional person should be sought.

The information contained in this publication is subject to change without notice. METROLIST, INC., DBA RECOLORADO MAKES NO WARRANTY OF ANY KIND WITH REGARD TO THIS MATERIAL, INCLUDING, BUT NOT LIMITED TO, THE IMPLIED WARRANTIES OF MERCHANTABILITY AND FITNESS FOR A PARTICULAR PURPOSE. METROLIST, INC., DBA RECOLORADO SHALL NOT BE LIABLE FOR ERRORS CONTAINED HEREIN OR FOR ANY DAMAGES IN CONNECTION WITH THE FURNISHING, PERFORMANCE, OR USE OF THIS MATERIAL.

All real estate advertised herein is subject to the Federal Fair Housing Act and the Colorado Fair Housing Act, which Acts make it illegal to make or publish any advertisement that indicates any preference, limitation, or discrimination based on race, color, religion, sex, handicap, familial status, or national origin.

METROLIST, INC., DBA RECOLORADO will not knowingly accept any advertising for real estate that is in violation of the law. All persons are hereby informed that all dwellings advertised are available on an equal opportunity basis.

©2025 METROLIST, INC., DBA RECOLORADO® – All Rights Reserved 6455 S. Yosemite St., Suite 300 Greenwood Village, CO 80111 USA

ALL RIGHTS RESERVED WORLDWIDE. No part of this publication may be reproduced, adapted, translated, stored in a retrieval system or transmitted in any form or by any means, electronic, mechanical, photocopying, recording, or otherwise, without the prior written permission of the publisher. The information contained herein including but not limited to all text, photographs, digital images, virtual tours, may be seeded and monitored for protection and tracking.

Hi there! How can we help you?

Contact us using the form below or give us a call.

Send Us A Message:

By clicking ‘Send,’ you consent to receive marketing and informational communications from Madison & Company Properties, LLC and its affiliates [Brokerage, Lenders, Title, and others] at the phone number and email address you provided. These communications may include text messages, phone calls (including those made using automated dialing systems or prerecorded messages), and emails related to Real Estate. Consent is not a condition of any purchase. Standard message and data rates may apply. You may opt out of receiving communications at any time by replying ‘STOP’ to text messages, clicking ‘Unsubscribe’ in emails, or contacting Madison & Company Properties at info@madisonprops.com. For more information about how your data is used and stored, please see our Privacy Policy & Terms of Service . I agree to the above terms and consent to receive communications as described.

Do not fill in this field:

This site is protected by reCAPTCHA and the Google Privacy Policy and Terms of Service apply.

Hi there! How can we help you?

Contact us using the form below or give us a call.

Send Us A Message:

Do not fill in this field:

This site is protected by reCAPTCHA and the Google Privacy Policy and Terms of Service apply.

Hi there! How can we help you?

Contact us using the form below or give us a call.

Send Us A Message:

Do not fill in this field:

This site is protected by reCAPTCHA and the Google Privacy Policy and Terms of Service apply.

Do not fill in this field:

This site is protected by reCAPTCHA and the Google Privacy Policy and Terms of Service apply.

Do not fill in this field:

This site is protected by reCAPTCHA and the Google Privacy Policy and Terms of Service apply.

Do not fill in this field:

This site is protected by reCAPTCHA and the Google Privacy Policy and Terms of Service apply.

$

Do not fill in this field:

This site is protected by reCAPTCHA and the Google Privacy Policy and Terms of Service apply.